VARIO kouřové sklo 800x2000mm
Kód: GX1380Související produkty
Detailní popis produktu
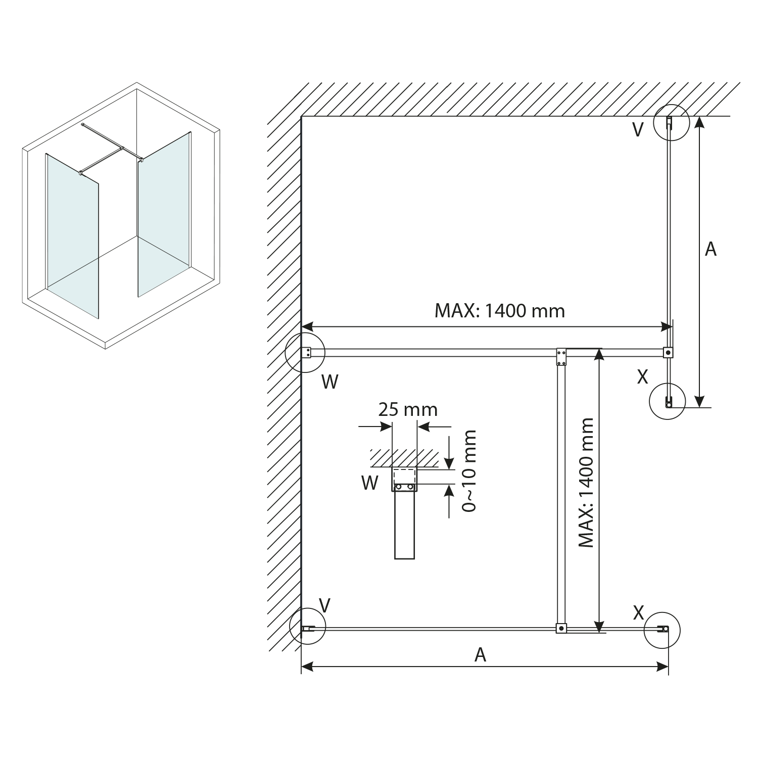
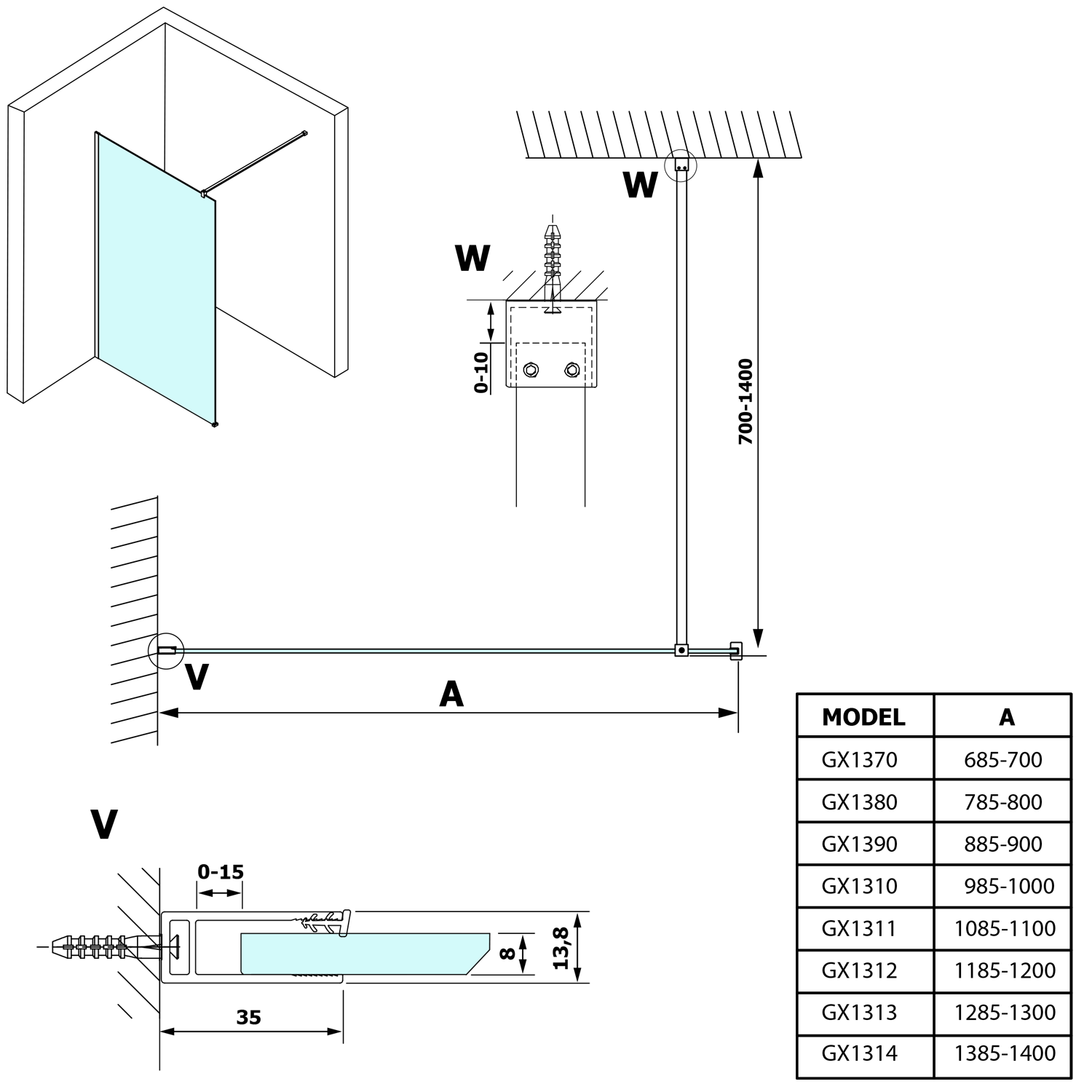
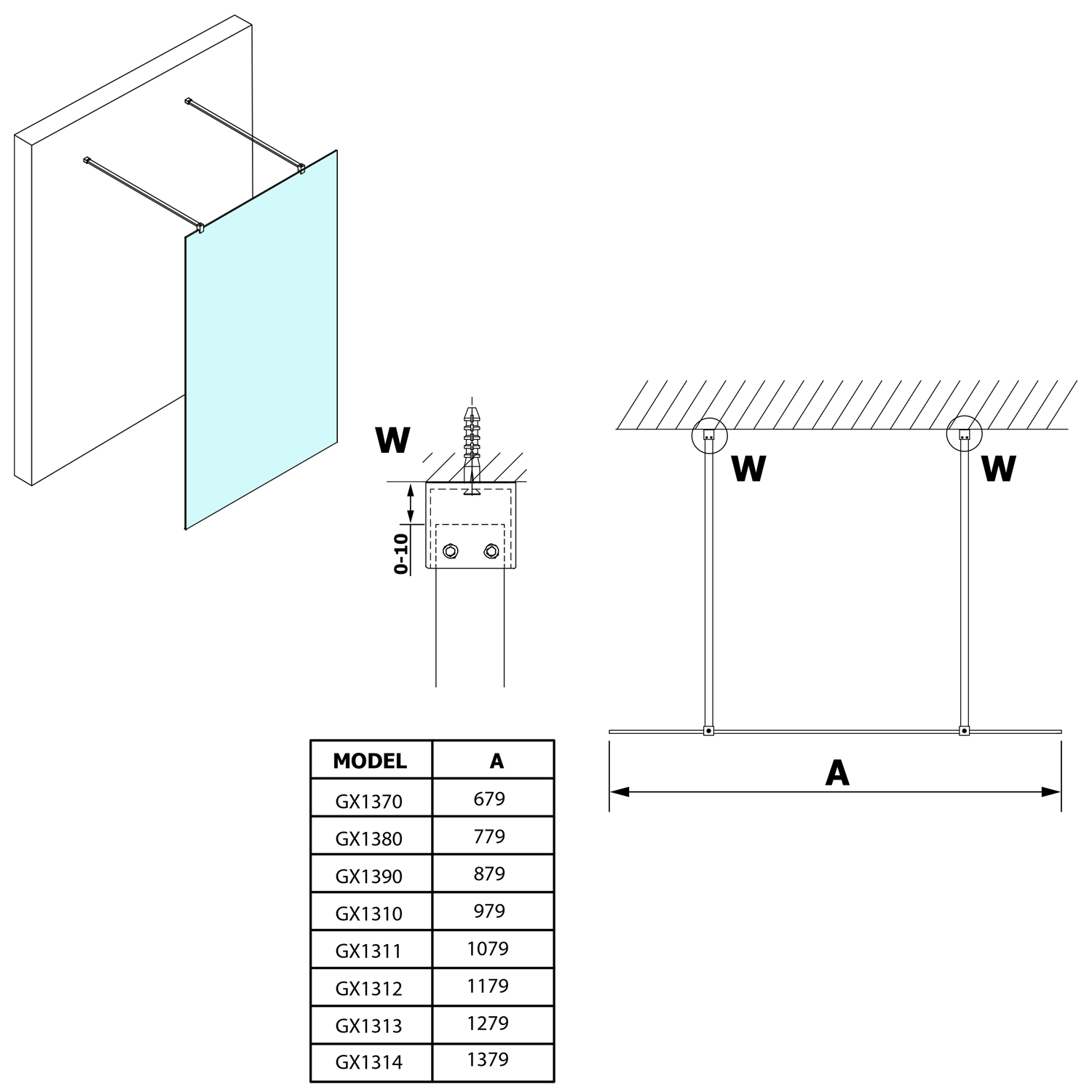
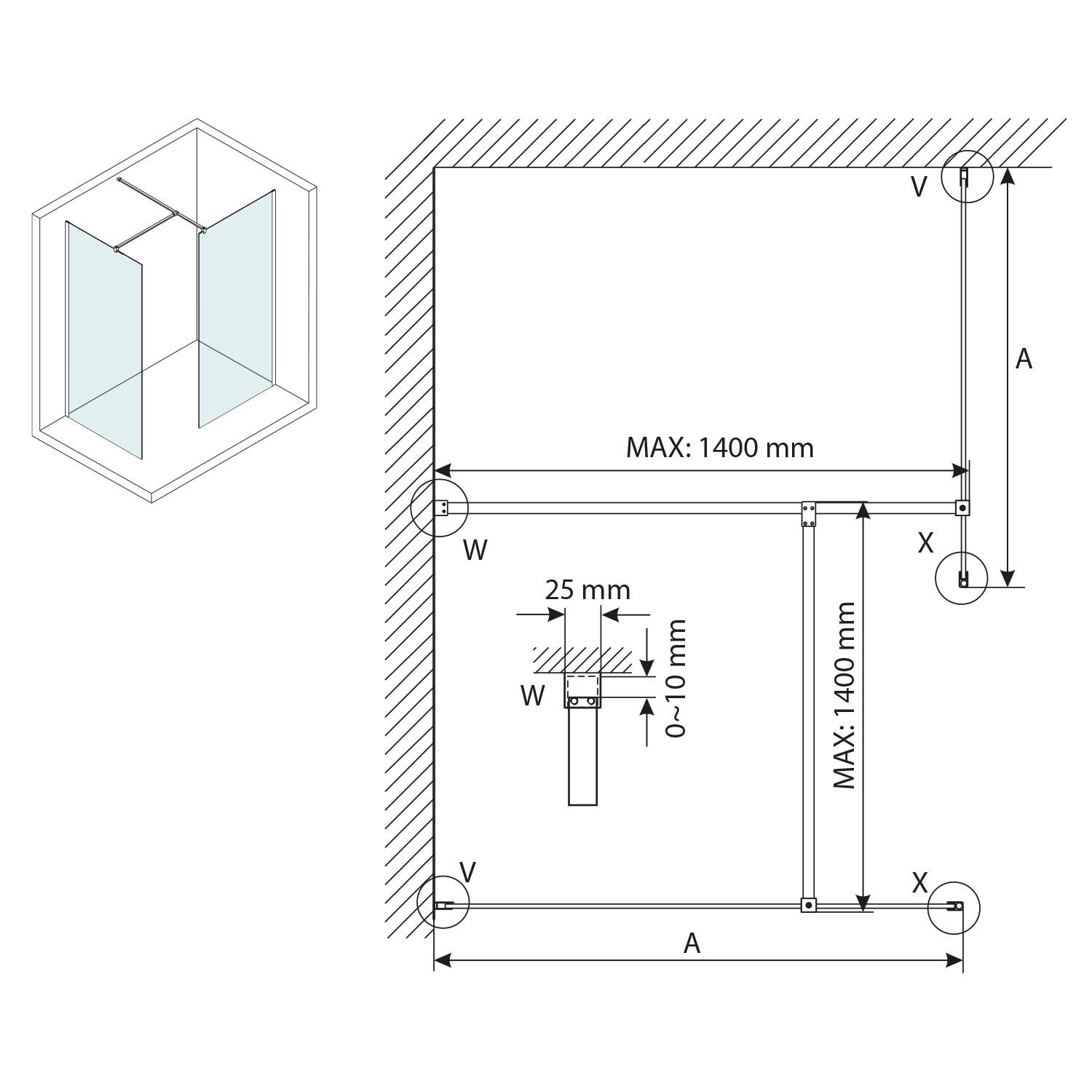
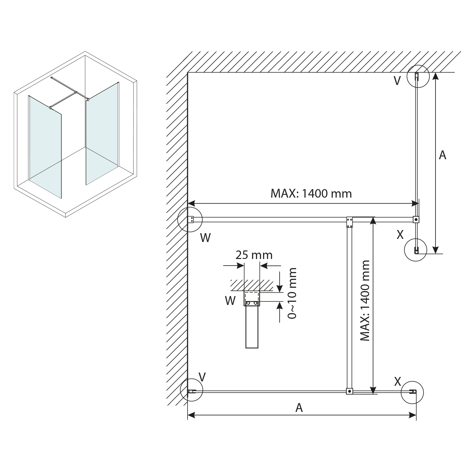
Technický nákres
Popis
Balení obsahuje pouze sklo, stěnový profil a vzpěru je třeba objednat samostatně.
Kolekce walk-in zástěn VARIO nabízí chytré a flexibilní řešení podle individuálních a prostorových dispozic. Stavebnicový systém výplní, vzpěr a profilů umožňuje promyšlené kombinace rozměrů, barev a tvarů zástěn – ať už ke stěně nebo do prostoru. Elegantní vzhled díky minimu komponentů v chromovém, černém matném, bílém matném, zlatém nebo zlatém matném provedení je vhodný pro každou koupelnu.
Charakteristika sprchových walk-in zástěn série VARIO
- Zástěny v šířkách 700 až 1400 mm
- Bezpečnostní sklo o síle 8 mm na výběr v provedení čiré / kouřové / matné / nordic nebo deska z vysokotlakého HPL laminátu o síle 8 mm
- Povrchová úprava skleněných výplní Coated Glass zabraňuje usazování vodního kamene a usnadňuje čištění
- Stěnové profily s tolerancí 15 mm usnadňují stabilní montáž zástěn, instalace je možná na dlažbu nebo sprchovou vaničku
- Stěnový profil zástěn na výběr z provedení: chrom / černá mat / bílá mat / zlatá mat
- Kolmá vzpěra o délce 1400 mm na výběr v provedení chrom / černá mat / bílá mat / zlatá mat
- Kolmou vzpěru lze zkrátit na požadovaný rozměr
- Rohová vzpěra o délce 650 mm na výběr v provedení chrom / černá mat / bílá mat / zlatá mat
- Možnost přidání pevného přídavného panelu o šířce 350 mm v provedení čiré sklo a barvě profilu chrom / černá mat ke skleněným výplním
- Variabilní provedení L/R
- Výška 2000 mm
Kombinace sestavení sprchového koutu:
Dokumenty - Návod
Doplňkové parametry
| Kategorie: | Sprchové kouty |
|---|---|
| Záruka: | 36 měsíců |
| Hmotnost: | 33 kg |
| EAN: | 8590913887666 |
| Série: | VARIO |
| Počet balení: | 1 |
| Šířka: | 800 |
| Tloušťka skla: | 8 |
| Výška: | 2000 |
| Balení: | 1 |
| 3D model: | ANO |
| EAN: | 8590913887666 |
| Hmotnost: | 33.0000 |
| Taric: | 70200080 |
| Typ výplně: | Kouřové sklo |
| Úprava skla: | Coated glass |
| Záruka: | 3 roky |
| Značka: | GELCO |
Diskuze
Buďte první, kdo napíše příspěvek k této položce.



