VARIO CHROME jednodílná sprchová zástěna k instalaci ke stěně, matné sklo, 1200 mm
Kód: GX1412GX1010Související produkty
Detailní popis produktu
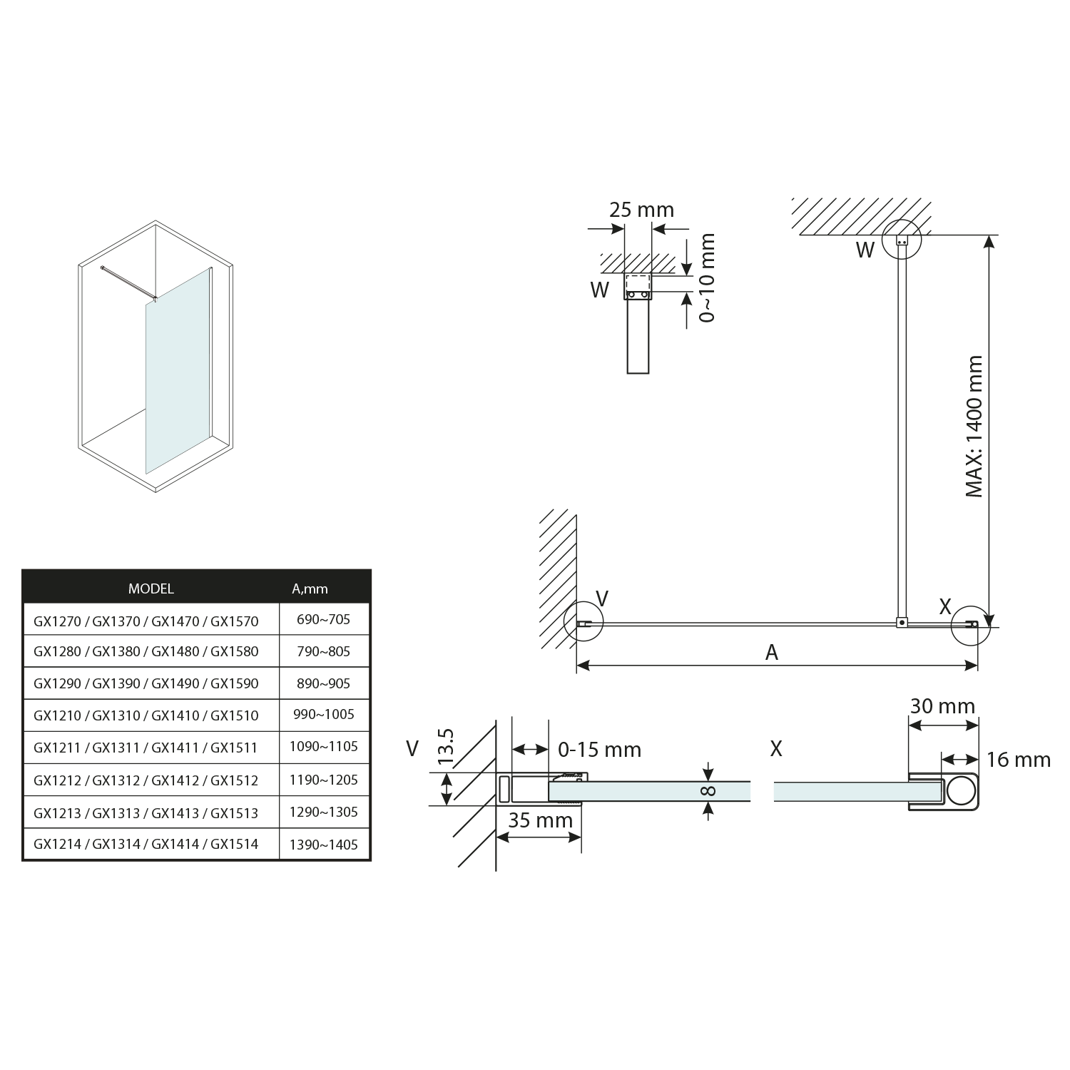
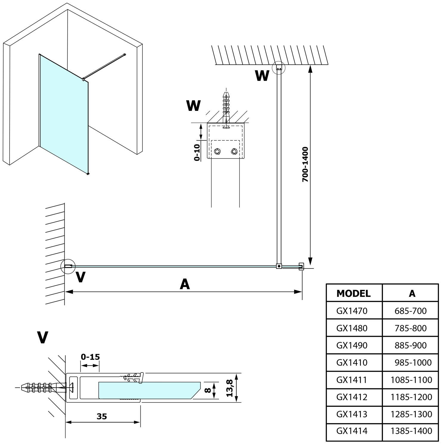
Technický nákres
Popis
Kolekce walk-in zástěn VARIO nabízí chytré a flexibilní řešení podle individuálních a prostorových dispozic. Stavebnicový systém výplní, vzpěr a profilů umožňuje promyšlené kombinace rozměrů, barev a tvarů zástěn – ať už ke stěně nebo do prostoru. Elegantní vzhled díky minimu komponentů v chromovém, černém matném, bílém matném, zlatém nebo zlatém matném provedení je vhodný pro každou koupelnu.
Charakteristika sprchových walk-in zástěn série VARIO
- Zástěny v šířkách 700 až 1400 mm
- Bezpečnostní sklo o síle 8 mm na výběr v provedení čiré / kouřové / matné / nordic nebo deska z vysokotlakého HPL laminátu o síle 8 mm
- Povrchová úprava skleněných výplní Coated Glass zabraňuje usazování vodního kamene a usnadňuje čištění
- Stěnové profily s tolerancí 15 mm usnadňují stabilní montáž zástěn, instalace je možná na dlažbu nebo sprchovou vaničku
- Stěnový profil zástěn na výběr z provedení: chrom / černá mat / bílá mat / zlatá mat
- Kolmá vzpěra o délce 1400 mm na výběr v provedení chrom / černá mat / bílá mat / zlatá mat
- Kolmou vzpěru lze zkrátit na požadovaný rozměr
- Rohová vzpěra o délce 650 mm na výběr v provedení chrom / černá mat / bílá mat / zlatá mat
- Možnost přidání pevného přídavného panelu o šířce 350 mm v provedení čiré sklo a barvě profilu chrom / černá mat ke skleněným výplním
- Variabilní provedení L/R
- Výška 2000 mm
Kombinace sestavení sprchového koutu:
Návody
Doplňkové parametry
| Kategorie: | Sprchové kouty |
|---|---|
| Záruka: | 36 měsíců |
| Hmotnost: | 63.15 kg |
| EAN: | 8590913908132 |
| Série: | VARIO |
| Barva profilu: | Chrom |
| Počet balení: | 2 |
| Šířka: | 1200 |
| Tloušťka skla: | 8 |
| Tvar: | Jednostěnná pevná |
| Výška: | 2000 |
| Balení: | 2 |
| 3D model: | ANO |
| Balení neobsahuje: | Vzpěra |
| EAN: | 8590913908132 |
| Hmotnost: | 63.1500 |
| Typ výplně: | Matné sklo |
| Úprava skla: | Coated glass |
| Záruka: | 3 roky |
| Značka: | GELCO |
Diskuze
Buďte první, kdo napíše příspěvek k této položce.



